【CN/EN】
13308085201
網站首頁
吸音材料
隔音材料
經典案例
設計指導
關於我們
隔音方案
新聞資訊
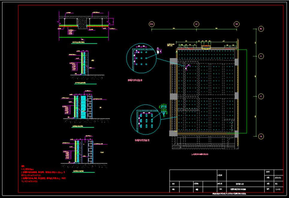
影院影廳隔音設計圖
電影院放映廳梁結構布置圖
電影院放映廳頂部吸音布置圖
電影院放映廳頂部隔音圖
電影院放映廳隔音門
推薦閱讀
·選購隔音棉的這些技巧你都記住瞭嗎?
2021-05-15 09:00:14
·隔音棉真的有用嗎?一起來學習下吧
2021-05-12 09:00:12
·什麽是吸音棉?你真的清楚嗎?
2021-05-09 09:00:20
·吸音闆的這些知識你都知道嗎?
2021-05-06 09:00:32
·你知道常見的吸音闆材質有哪些嗎?一起來瞭解下吧
2021-05-03 09:00:09